珠海
关闭
A
阿克苏
阿拉尔
安宁
安阳
安丘
长丰
安吉
阿拉善盟
安庆
安陆
安康
阿坝州
安顺
安达
鞍山
B
巴州
博尔塔拉
博罗
亳州
宝应
白城
白山
巴彦淖尔
北京
博兴
博鳌
滨州
蚌埠
白银
宝鸡
巴中
毕节
保山
百色
北海
巴彦
宾县
本溪
包头
保定
C
崇州
潮州
常宁
望城
长葛
昌邑
淳安
赤峰
昌黎
沧州
澄迈
长乐
滁州
池州
巢湖
苍南
慈溪
长兴
蕲春
常德
郴州
长沙
昌吉
成都
长寿
楚雄
崇左
常熟
常州
长春
朝阳
赤峰市
长治
承德
D
东方
都江堰
大邑
当阳
邓州
德化
当涂
德清
东海
德惠
定兴
定州
登封
德州
东营
东阳
定西
达州
德阳
垫江
都匀
迪庆
德宏
大理
东台
大兴安岭
大庆
东港
丹东
大连
大同
东莞
E
峨眉山
恩平
恩施
鄂州
鄂尔多斯
F
福安
安溪
繁昌
肥东
肥西
奉化
阜宁
肥城
抚州
福清
福州
阜阳
富阳
涪陵
防城港
法库
凤城
阜新
抚顺
佛山
G
高陵
宾阳
龙门
巩义
固镇
公主岭
高碑店
高密
广饶
高雄
赣州
固原
果洛
甘南
高邮
甘孜
广安
广元
贵阳
贵港
桂林
广州
H
和田
哈密
户县
海南
横县
鹤山
惠东
汉川
枣阳
宜城
京山
宜阳
新安
禹州
海阳
惠安
怀远
霍邱
湖州
桦甸
海拉尔
怀仁
深州
三河
平山
霸州
元氏
赵县
无极
青龙
乐亭
晋州
桓台
花莲
鹤壁
漯河
菏泽
淮北
淮南
黄山
合肥
海宁
湖州
海盐
杭州
红安
黄冈
黄石
怀化
衡阳
海西
海南州
黄南
海北
海东
海安
海门
汉中
合川
红河
河池
淮安
海林
黑河
鹤岗
哈尔滨
海城
葫芦岛
呼伦贝尔
呼和浩特
衡水
邯郸
河源
惠州
贺州
海口
J
简阳
济源
长清
胶南
靖安
丰城
进贤
建德
金湖
姜堰
句容
丰县
睢宁
榆树
冀州
即墨
胶州
嘉义
基隆
焦作
济宁
济南
景德镇
吉安
九江
嘉善
金华
嘉兴
荆州
荆门
沅江
吉首
酒泉
嘉峪关
金坛
江阴
靖江
江都
金昌
綦江
江津
鸡西
佳木斯
吉林
锦州
晋中
晋城
江门
揭阳
K
奎屯
克孜勒苏
库尔勒
开阳
开平
玉山
开封
喀什
克拉玛依
凯里
昆明
昆山
康平
L
蓝田
罗定
老河口
栾川
兰考
洛宁
临清
莱阳
临朐
罗源
龙海
庐江
临安
辽源
台安
滦南
滦县
廊坊
莱州
洛阳
莱西
龙口
莱芜
聊城
临沂
连江
龙岩
六安
临海
乐青
丽水
醴陵
娄底
临夏
陇南
兰州
拉萨
凉山
乐山
六盘水
临沧
丽江
来宾
柳州
连云港
辽中
辽阳
吕梁
临汾
陵水
M
孟津
闽清
苗栗
马鞍山
麻城
眉山
绵阳
牡丹江
梅州
茂名
N
南安
宁海
高淳
农安
南投
南阳
南昌
宁德
南平
宁波
宁乡
内江
南充
南川
怒江
南通
南京
南宁
P
彭州
普宁
蓬莱
平度
沛县
屏东
澎湖
平顶山
萍乡
平潭
莆田
平湖
平凉
攀枝花
普洱
普兰店
盘锦
Q
清镇
黔南
黔东南
黔西南
邛崃
庆云
齐河
栖霞
泉港
衢州
泉山
清徐
迁西
迁安
曲阜
青州
青岛
泉州
潜江
庆阳
黔江
曲靖
钦州
启东
七台河
齐齐哈尔
秦皇岛
清远
琼海
R
汝州
汝阳
瑞金
任丘
乳山
日照
瑞安
如东
如皋
仁怀
瑞丽
S
三沙
金堂
顺德
韶关
韶山
邵阳
嵩县
平阴
昌乐
商河
济阳
石狮
绍兴
沭阳
松原
临猗
上海
寿光
三门峡
商丘
上饶
三明
宿松
宿州
上虞
神农架
随州
十堰
石河子
石嘴山
商洛
双流
遂宁
石柱
宿迁
苏州
尚志
绥化
双鸭山
四平
沈阳
朔州
石家庄
汕头
汕尾
深圳
三亚
T
图木舒克
吐鲁番
台山
桐城
铜山
通化
通辽
天津
台东
桃园
台南
台中
泰安
铜陵
桐乡
台州
天门
桃江
台北
太仓
天水
铜川
铜梁
铜仁
泰兴
泰州
泰安
铁岭
通辽市
唐山
太原
W
乌鲁木齐
五家渠
汉南
舞钢
五河
乌海
武安
文安
文昌
威海
潍坊
芜湖
温岭
温州
武汉
吴忠
武威
渭南
武陵
武隆
万州
文山
梧州
吴江
无锡
五常
瓦房店
乌兰察布
乌海市
五指山
万宁
X
修文
新津
新丰
湘乡
新密
新郑
新乡
新建
盱眙
锡林浩特
兴安盟
锡林郭勒盟
新乐
辛集
邢台
新泰
新竹
信阳
许昌
新余
厦门
宣城
萧山
咸宁
仙桃
孝感
襄阳
攸县
澧县
湘西
湘潭
香港
新北
西宁
新沂
兴化
咸阳
西安
兴义
西双版纳
徐州
新民
忻州
Y
伊犁
榆中
永登
宜良
邕宁
阳春
宜都
永城
偃师
伊川
鄢陵
长岛
永安
永泰
永春
余姚
乐清
延边
阳曲
玉田
云林
宜兰
荥阳
濮阳
烟台
鹰潭
宜春
永康
玉环
义乌
阳新
宜昌
耒阳
浏阳
岳阳
益阳
永州
银川
玉树
仪征
沐阳
宜兴
榆林
延安
雅安
宜宾
云阳
永川
玉溪
玉林
溧阳
盐城
扬州
依兰
伊春
营口
运城
阳泉
云浮
阳江
Z
珠海
周至
钟祥
枝江
中牟
邹城
招远
诸城
镇海
象山
桐庐
诸暨
遵化
张北
章丘
滕州
邹平
儋州
彰化
周口
驻马店
郑州
兖州
枣庄
淄博
漳州
舟山
张家界
株洲
中卫
张掖
自贡
泸州
资阳
忠县
重庆
遵义
昭通
邳州
张家港
镇江
肇源
肇州
肇东
庄河
张家口
湛江
肇庆
中山

融创金成九阙府

在售 宜居生态教育地产低密居所
均价:7250元/㎡

参考期限:2021-05-26至2021-06-26

  • 商铺别墅住宅
  • 塔楼
  • 2020年11月15#楼开盘开盘通知
  • 高层预计2021年12月
  • 5室(182.00㎡) |5室(202.00㎡)
  • 6#楼【2021-004LD】
  • 柳州翰博房地产开发有限公司
  • 乐园路1号(卡乐星球2号停车场北面) 查看地图
07725086666
微信扫码拨号
5室2厅

8#、10#、18#、20#别墅B户型 5室2厅1厨4卫 202.00㎡

  • 146万

    参考总价

  • 待定

    参考首付

  • 待定

    参考月供

  • 202.00㎡

    面积

查看户型原图
5室2厅

5#、6#、7#、9#、11#、12#、17#、18#、19 5室2厅1厨4卫 182.00㎡

  • 131万

    参考总价

  • 待定

    参考首付

  • 待定

    参考月供

  • 182.00㎡

    面积

查看户型原图
楼盘问答 更多
暂无数据
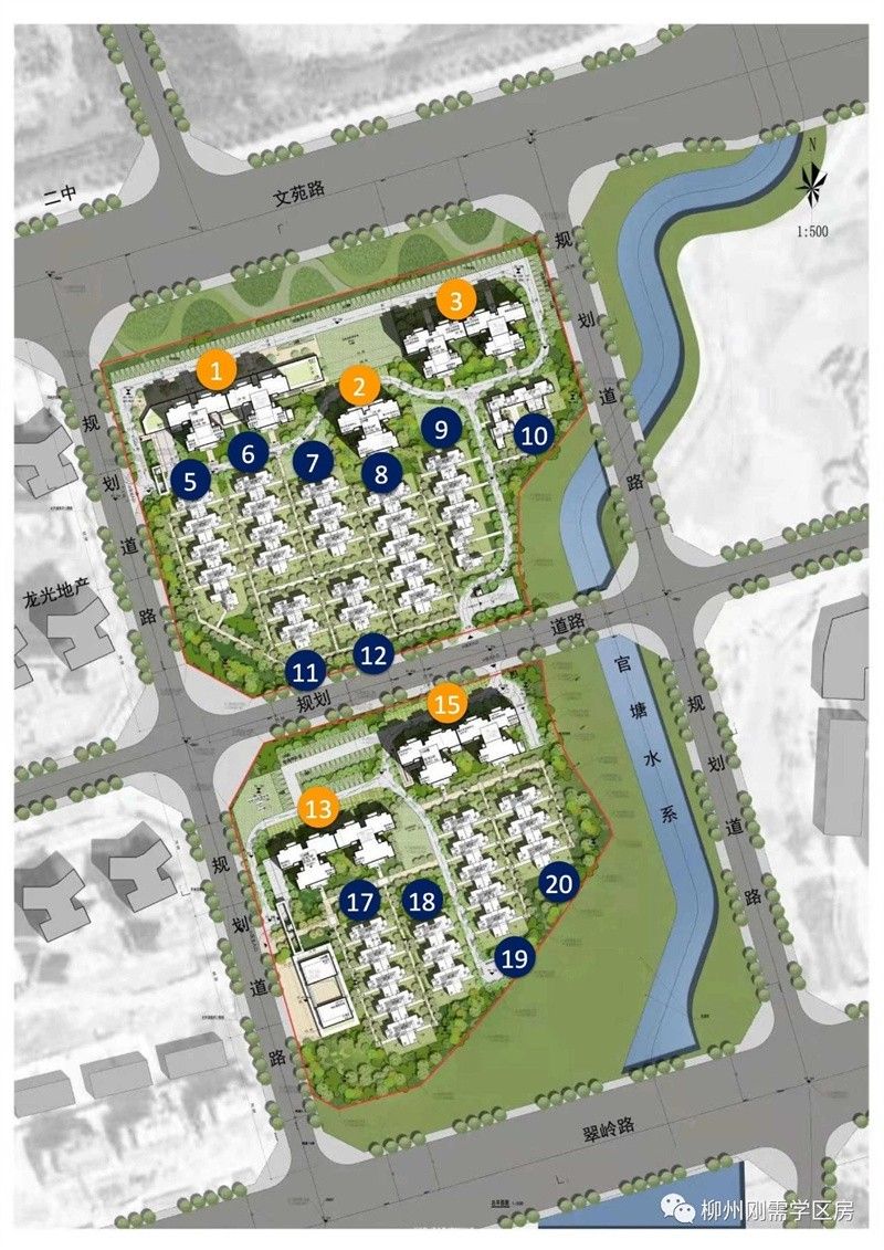
楼栋信息
融创金成九阙府楼栋信息
6#
15#
2#
1#
3#
在售
待售
售罄
楼盘详情
  • 柳州翰博房地产开发有限公司
  • 普通住宅:70年
  • 57959 ㎡
  • 132657 ㎡
  • 30%
  • 2.29 
  • 停车位约1694个
  • 1129户
  • 2.2元/㎡·月 
  • 重庆融创物业管理有限公司柳州分公司
  • 毛坯

融创金成九阙府为融创携「九府系」落子柳东居住区,联袂金成控股强强联合,以16载筑府造诣精著之作。融创遵循府尊、园韵、匠著,三纲九制,以“山、水、府、林、野”为仪,筑五重归家礼序,再现中国世家礼仪。九阙府临近轨道一号线(预计2020年底通车),曙光大道、新柳大道、官塘大道、三门江立交,纵横四方。九阙府毗邻68万㎡园博园,九子岭公园、官塘滨江湿地公园、龙湖公园(在建)簇拥左右,优享城市生态氧吧。项目坐落于柳东新区,位于华润大型商业综合体(在建)、28座友邻汇(规划)、华侨城商业街等商业集群之心,毗邻卡乐星球欢乐世界、克里湾水乐园,逸享欢乐之趣。以商为脉,划定高端人居繁华疆场。项目景观临摹柳宗元名作《柳州山水近治可游者记》,以“一纵三横多庭院”,打造东方府苑。秀石迎客、碧水清流、林下游鱼,足不出户即赏山水自然、人文交融的清雅景致。九阙府涵盖高层住宅、合院别墅两大形态,由南往北、由低往高依序布局,打造户户明堂皆阔景的尊崇体验。采用新东方主义风格,结合传统建筑的廊柱、花窗纹样等元素,施以古铜色、灰色、米白色调,呈现出典雅、尊贵的建筑风貌。既有东方藏韵,又见府园至尊。从择址到建著,九阙府浓墨重彩,篆刻中国人骨子里的家国情结和文化审美,领秀时代国风府院。

楼盘点评 更多
暂无数据
周边配套

消息通知(我们将为您保密个人信息)

融创金成九阙府 在售

7250 元/㎡(均价)

微信扫码拨号

07725086666
为您推荐
  • 均价7250元/㎡
    [柳东区]乐园路1号(卡乐星球2号停车场北面)
    宜居生态教育地产低密居所
  • 均价7800元/㎡
    [柳东新区]翠岭路18号(华侨城卡乐星球正对面)
    公园地产宜居生态