楼盘动态 更多
-
暂无数据
148室171厅
148室171厅
148室171厅
148室171厅
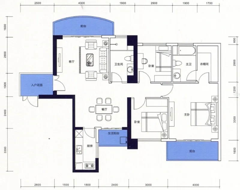
169室171厅
148室171厅
148室171厅
147室171厅
148室171厅
168室171厅
楼盘问答 更多
暂无数据
楼盘详情
- 中山深城建房地产有限公司
- 普通住宅:70年
- 122412.6平方米
- 514208.79平方米
- 35%
- 2.99
- 3660">3660
- 3497户
- 2.80元/㎡·月
- 深圳市城建物业管理有限公司
- 毛坯
御城金湾位于坦洲镇 ,与主干道神农路相邻,与界狮南路仅百米之遥,地理位置优越,融合 住宅、大型集中商业以及 公寓为一体的 都市综合体,总占地面积122412.6㎡,容积率2.99,总建筑面积514208.79㎡,建双地下停车场,总共3400余个停车位。
项目住宅面积342843.22㎡,共3275户,规划高层住宅11栋,公寓1栋,28-32层;御城金湾采用“流线型”现代滨海建筑风格。
项目住宅面积342843.22㎡,共3275户,规划高层住宅11栋,公寓1栋,28-32层;御城金湾采用“流线型”现代滨海建筑风格。
楼盘点评
更多
暂无数据
消息通知(我们将为您保密个人信息)
御城金湾 在售
11000 元/㎡(均价)
微信扫码拨号
0756-8639007




